Основные преимущества:
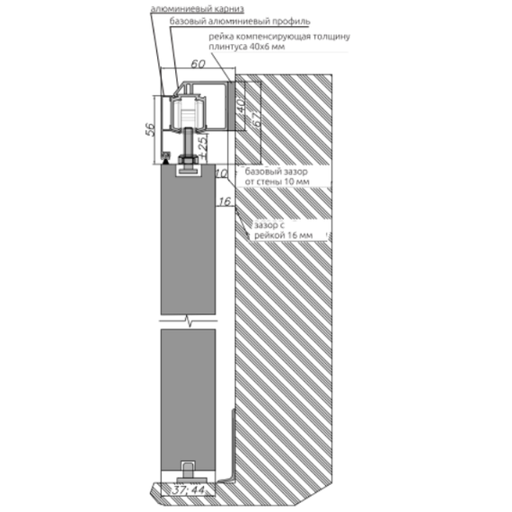
- подходит для дверей толщиной от 36 до 44 мм;
- выдерживает нагрузку до 120 кг;
- подходит для проёма до 1800 мм;
- возможность выбрать цвет комплекта;
- готовый комплект для лёгкого монтажа.
В комплект входит:
- алюминиевый карниз 4000 мм - 1 шт;
- алюминиевый трек 4000 мм - 1 шт;
- алюминиевый профиль 4000 мм - 1 шт;
- нижняя направляющая 7 мм - 2 шт;
- каретка металлическая - 2 шт;
- доводчик двунаправленный - 4 шт;
- активатор доводчика - 4 шт;
- стопоры - 4 шт;
- специальный крепежный винт - 4 шт;
- комплект крепления механизма.
Ручка и обрамление проема - в комплект не входят.



